HB3: Gewerbegrundstück Hepberg, An der Batterie 3-5, direkt an der A9
Lage
Im Gewerbegebiet Hepberg in ca. 2 min über A9 zu erreichen
An der St 2335 (Zubringerstraße) Entfernung zu Audi Ingolstadt ca. 10 km
Gesamtgröße des Grundstücks: 6.558 m²
Gebäude
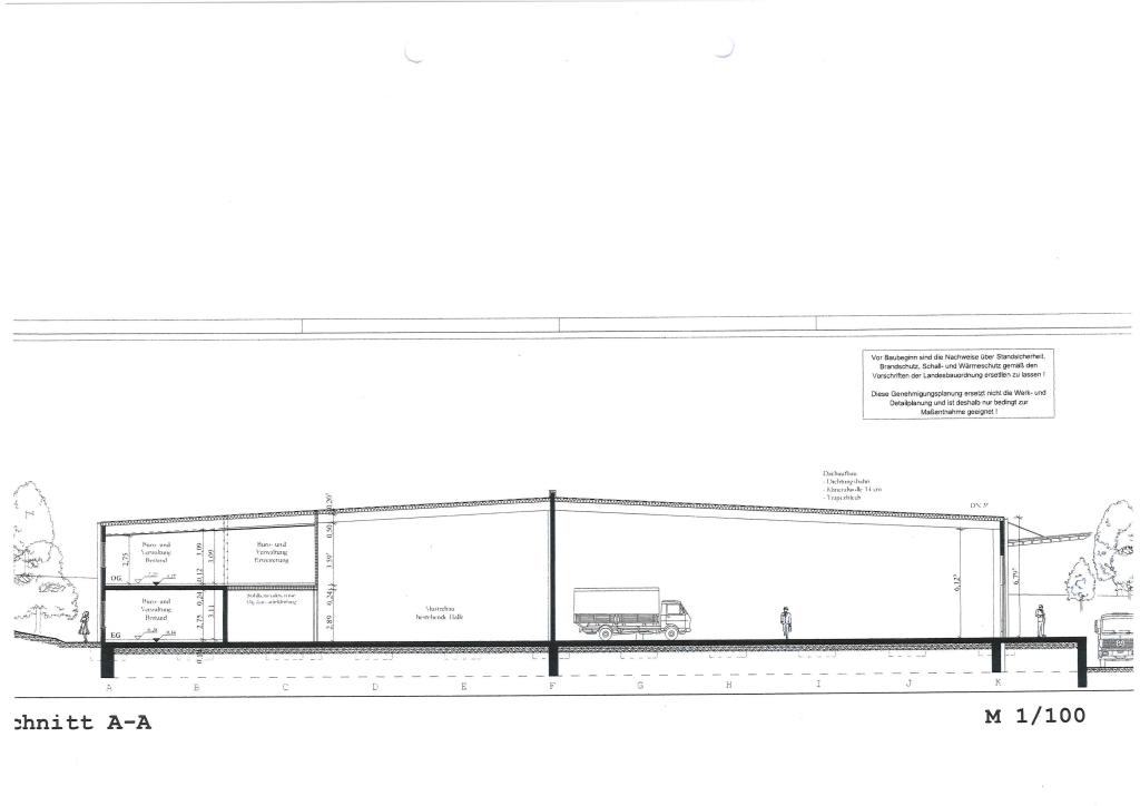
Hallenflächen, Raumhöhe 6,00 bis 7,00 m: 2.034 m²
Heizung: Warmwasser Gas Brennwert
Böden: Zementestrich Glattstrich
Innenräume, Büro- und Verkehrsflächen mit 4 Zugängen, Raumhöhen von 2,50 bis 3,50 m
Heizung: Warmwasser Gas Brennwert
Klimaanlagen: Elektro Außengeräte
Böden: Teppich ganzflächig verlegt
Abgehängte, schalldämmende Decke
EG links Süd: 163 m²
EG links West: 700 m²
EG rechts: 120 m²
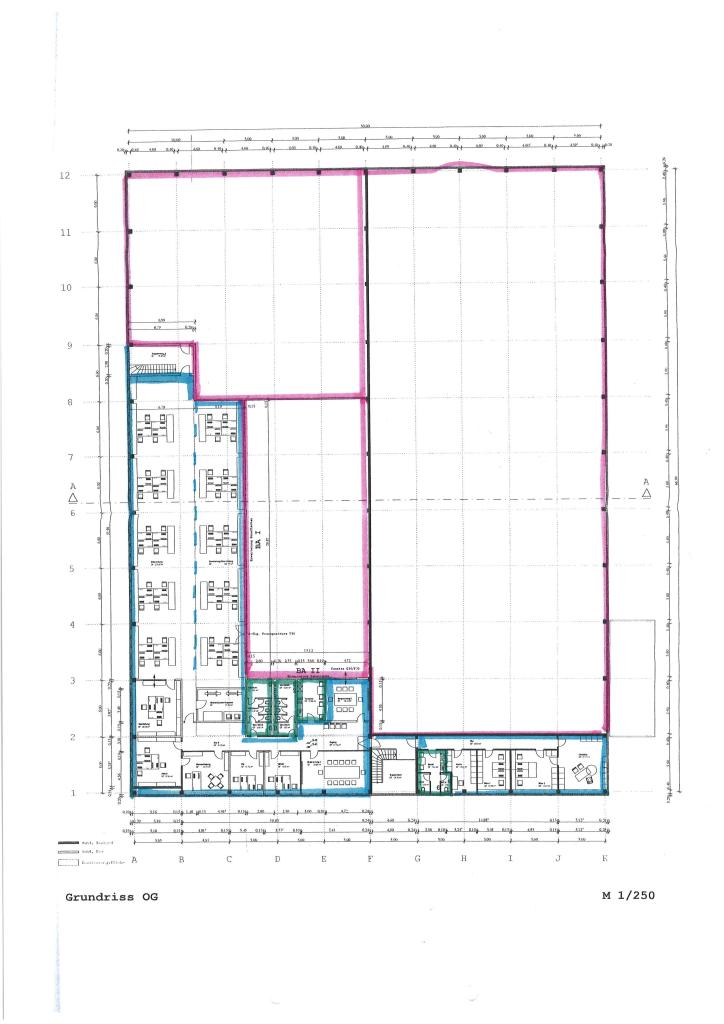
OG links Süd: 163 m²
OG links West: 523 m²
OG rechts: 120 m²
Büro, Flure und sanitäre Flächen gesamt: 1.789 m²
davon sanitäre Räume: 105 m²
Allgemeine Verkehrsflächen im Haus (2 Treppenhäuser): 38 m²
Befestigte Freiflächen aus Betonverbundsteinen (Zufahrts- und PKW Stellplätze)
Freiflächen Süd: 1.000 m²
Freiflächen Ost: 523 m²
Hinweise:
Die Flächen können insgesamt oder in Teilen angemietet werden.
Bei Vermietung in Teilen sind die Zugangsmöglichkeiten zu beachten.
Als „links“ bezeichnete Flächen können sofort genutzt werden.









